Bt1973 |
前橋市青柳町 |
2,000万円 |
11.6万円 |
572m2 - |
畑 第一種中高 |
更地 相談 |
|
|
| 桃川小学校約1800m、南橘中学校約900m、主要道路へのアクセス良好、カインズホーム等商用施設1km圏内 |
Bt5659 |
前橋市南町 |
2,080万円 |
36.78万円 |
186.94m2 |
宅地 第一種中高 |
上物有 相談 |
|
|
Bt2632 |
前橋市元総社町(蒼海区画整理地内) |
2,300万円 |
22.79万円 |
333.53m2 |
畑 第一種低層 |
更地 相談 |
|
|
| 造成がどんどんすすみます元総社蒼海区画整理地内の売買予定地です!西側・北側は前橋市区画整理課により、よう壁(区画境界割り)の施工が予定されています。(2〜3m以上あいて建つ予定のため・日当り良好の予定!お勧めです)一種低層の用途地域にて高い建物が建たず住宅環境に最適と考えます。、元総社幼稚園50m、元総社北小学校770m、元総社中学校900m、新前橋駅2300m、元総社公民館750m、セブンイレブン600m(現状の道にて)、フレッセイ大友店1300m、フレッセイ元総社【新設店】(直線距離にて330m、現状道順800m)総社神社850m、明神東公園900m、建築条件なし、公営水道、公共本下水、側溝、プロパンガス |
Bt1865 |
前橋市大友町2丁目5−14の一部 |
2,500万円 |
14.91万円 |
554.2m2 |
宅地 第一種住居 |
更地 測量・分筆後 |
|
|
| 元総社小学校約1km、元総社中学校約1.4km、コンビニ(セブンイレブン)まで約240m、フレッセイまで約690m。徒歩の範囲内でコンビニや郵便局、大きな公園と児童館もあって環境のよい住宅街です。特にマックも近い公園は・・(近所の通称「たこ公園」)は少年野球をしていたり、かくれんぼも出来ます。このあたりの小さなお子様には人気です。近所の飲食店も充実!食事の準備をサボっても選択肢も豊富ですね。北道路でいわゆる旗竿地ですが進入部分がゆったり4m。隅切り部分は6mを確保していて、車の出し入れもゆとりがあります。奥に入ればゆったりですので、プライバシーも確保できて逆にいいかもしれません |
Bt5642
|
前橋市川原町1ー36−1 |
2,580万円 |
22.93万円 |
371.92m2 |
畑 第一種低層 |
更地 相談 |
|
  
|
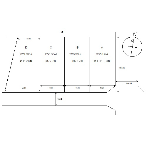
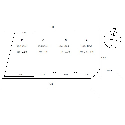
| 売主につき仲介手数料不要、取引面積確定後、分筆・境界ブロックを施工にて引渡し致します。建築条件なし、公営水道、公共本下水、都市ガス、電気、側溝、農地転用届出要、公園すぐ裏,荒牧小学校700m、ローソン180m、JAファーマーズスーパー500m、敷島公園850m、川原郵便局560m、前橋ゴルフ場400m |
Bt5639
|
前橋市川原町1ー36−1 |
2,680万円 |
26.43万円 |
335.12m2 |
畑 第一種低層 |
更地 相談 |
|
  
|
| 売主につき仲介手数料不要、角地、取引面積確定後、分筆・境界ブロックを施工にて引渡し致します。建築条件なし、公営水道、公共本下水、都市ガス、電気、側溝、農地転用届出要、公園すぐ裏,荒牧小学校700m、ローソン180m、JAファーマーズスーパー500m、敷島公園850m、川原郵便局560m、前橋ゴルフ場400m |
Bt2737 |
前橋市総社町総社 |
2,700万円 |
21.65万円 |
412.1m2 - |
畑 近隣商業 |
更地 相談 |
|
|
| 元総社蒼海区画整理地内!西毛広幹道に面する南道路です。北側と東側は歩道(歩道専用道路)が整備される予定です(北6m・東4m)、対象面積は仮換地面積にて412.10u・・購入者は隣地保留地94.98u(約28.7坪)の追加購入相談も可能です。現地の使用収益開始時期(利用可能時期)と造成時期(整備時期)は区画整理のスケジュールによります(本年度中を予定)。建築条件なし、角地、公営水道(引き込みは自己負担です)、公共本下水(受益者負担金により市整備)、側溝、プロパンガス、元総社北小学校400m、元総社中学校500m、フレッセイ200m、マルエドラッグ170m、ローソン170m、セブンイレブン300m、イオン高崎2400m、新前橋駅2200m、前橋IC2500m、 |
Bt5661
|
前橋市南町 |
2,900万円 |
27万円 |
355.05m2 |
宅地 第一種住居 |
上物有 相談 |
|
  
|
Bt2581 |
前橋市総社町2丁目 |
3,000万円 |
15万円 |
661.16m2 - |
宅地 第一種住居 |
更地 即時 |
|
|
| 閑静な住宅地、面積の増減は相談可能。側溝、プロパンガス、電気、公共本下水、公営水道。 |
Bt2635 |
前橋市元総社町(蒼海区画整理地内)100街区 |
3,388万円 |
21.98万円 |
509.45m2 |
宅地 第一種住居 |
更地 相談 |
|
|
| 元総社蒼海区画整理地内!南道路の154坪です。区画整理に伴って拡幅する県道足門線沿いですので店舗や事務所にもどうぞ!新前橋駅2300m、元総社北小学校1500m、元総社中学校1600m、元総社幼稚園560m、セブンイレブン550m、イオン高崎2000m、フレッセイ1100m、総社神社860m、前橋IC1600m、建築条件なし、角地、公営水道、公共本下水、電気、プロパンガス |
Bt2426 |
前橋市元総社町 |
3,500万円 |
24.01万円 |
481.81m2 |
宅地 第一種住居 |
更地 即時 |
|
|
| 区画整理済み元総社町、西毛広幹道南側プロパンガス、公営水道、公共本下水、電気、元総社北小学校700m、元総社中学校700m |
Bt5252
|
前橋市若宮町 |
3,500万円 |
19.81万円 |
584.03m2 |
宅地 近隣商業 |
更地 相談 |
|

|
Bt2124 |
前橋市総社町 |
3,732万円 |
19.99万円 |
617m2 |
雑種地 第一種中高 |
上物有 相談 |
|
|
| 引渡条件:更地渡し・総社小学校1000m、第六中学校1300m |
Bt2979 |
高崎市大八木町915-6 |
4,229万円 |
17.49万円 |
799m2 |
田 工業地域 |
更地 相談 |
|
|
| 建築条件なし、公営水道、公共本下水、側溝、歩道、中川小学校1500m、中尾中学校2800m、井野駅2500m、ローソン630m、とりせん630m、福島公園290m、イオンも近くです |
Bt3299 |
前橋市元総社町(蒼海区画整理地内)41街区 |
4,500万円 |
22.29万円 |
667.31m2 |
宅地 第一種住居 |
更地 即時 |
|
|
| 元総社蒼海区画整理地内、元総社北小学校、元総社中学校、元総社幼稚園至近、建築条件なし、公営水道、公共本下水、側溝、プロパンガス、電気、分割ご相談、 |
Bt4704 |
前橋市三河町1丁目 |
4,500万円 |
29.65万円 |
501.57m2 |
宅地 商業地域 |
更地 相談 |
|
|
| 建築条件なし、角地、公営水道、公共本下水、側溝、区画整理事業地内、中川小学校20m(目の前)、みずき中学校1900m、前橋駅850m、 |