Bt529 |
前橋市荒牧町2丁目 |
590万円 |
20.14万円 |
96.83m2 |
宅地 第二種中高 |
更地 相談 |
|
|
| 面積は小さいですが、建築計画を工夫すれば比較的低予算で、人気の荒牧に!建築条件なし、公営水道(引き込みなし・南道路に本管50mm)、公共本下水(南側本管250mmより150mm「引き込み済み:受益者負担金納付済み)、側溝、プロパンガス(都市ガス区域外)、文化財該当なし |
Bt5506
|
前橋市川原町1-2-11 |
1,198万円 |
18.32万円 |
216.06m2 |
畑 第一種低層 |
更地 即時 |
|
 
|
| 売主につき仲介手数料不要、農地転用届出要、建築条件なし、公営水道、公共本下水、都市ガス、電気、荒牧小学校740m、川原郵便局141m、ローソン450m、セブンイレブン599m、JAファーマーズスーパー736m、敷島公園850m、 |
Bt4444 |
前橋市上小出町2丁目 |
1,298万円 |
14.8万円 |
290.16m2 - |
宅地 第二種中高 |
更地 相談 |
|
|
| 公営水道、公共本下水、プロパンガス。公園近くの閑静な住宅地。コンビニ徒歩圏内。フレッセイ1100m。 |
Bt4446 |
前橋市上小出町2丁目 |
1,298万円 |
18.3万円 |
234.56m2 - |
宅地 |
更地 相談 |
|
|
| 電気、公営水道、公共本下水、プロパンガス。公園近くの閑静な住宅地。コンビニ徒歩圏内。フレッセイ1100m。 |
Bt4445 |
前橋市上小出町2丁目 |
1,398万円 |
19.68万円 |
234.83m2 - |
宅地 |
更地 相談 |
|
|
| 公営水道、公共本下水、プロパンガス。公園近くの閑静な住宅地。コンビニ徒歩圏内。フレッセイ1100m。 |
Bt657 |
前橋市荒牧町2丁目21-18 |
1,420万円 |
20.02万円 |
234.43m2 |
宅地 第二種中高 |
更地 相談 |
|
|
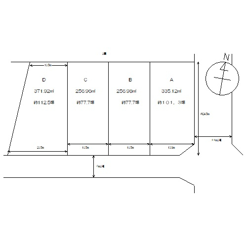
Bt5640
|
前橋市川原町1ー36−1 |
1,880万円 |
24.18万円 |
256.98m2 |
畑 第一種低層 |
更地 相談 |
|
  
|
| 売主につき仲介手数料不要、取引面積確定後、分筆・境界ブロックを施工にて引渡し致します。建築条件なし、公営水道、公共本下水、都市ガス、電気、側溝、農地転用届出要、公園すぐ裏,荒牧小学校700m、ローソン180m、JAファーマーズスーパー500m、敷島公園850m、川原郵便局560m、前橋ゴルフ場400m |
Bt5641
|
前橋市川原町1ー36−1 |
1,880万円 |
24.18万円 |
256.96m2 |
畑 第一種低層 |
更地 相談 |
|
  
|
| 売主につき仲介手数料不要、取引面積確定後、分筆・境界ブロックを施工にて引渡し致します。建築条件なし、公営水道、公共本下水、都市ガス、電気、側溝、農地転用届出要、公園すぐ裏,荒牧小学校700m、ローソン180m、JAファーマーズスーパー500m、敷島公園850m、川原郵便局560m、前橋ゴルフ場400m |
Bt4443 |
前橋市上小出町2丁目 |
1,998万円 |
23.85万円 |
276.89m2 - |
宅地 |
更地 相談 |
|
|
| 公営水道、公共本下水、プロパンガス。公園近くの閑静な住宅地。コンビニ徒歩圏内。フレッセイ1100m。 |
Bt5642
|
前橋市川原町1ー36−1 |
2,580万円 |
22.93万円 |
371.92m2 |
畑 第一種低層 |
更地 相談 |
|
  
|
| 売主につき仲介手数料不要、取引面積確定後、分筆・境界ブロックを施工にて引渡し致します。建築条件なし、公営水道、公共本下水、都市ガス、電気、側溝、農地転用届出要、公園すぐ裏,荒牧小学校700m、ローソン180m、JAファーマーズスーパー500m、敷島公園850m、川原郵便局560m、前橋ゴルフ場400m |
Bt5639
|
前橋市川原町1ー36−1 |
2,680万円 |
26.43万円 |
335.12m2 |
畑 第一種低層 |
更地 相談 |
|
  
|
| 売主につき仲介手数料不要、角地、取引面積確定後、分筆・境界ブロックを施工にて引渡し致します。建築条件なし、公営水道、公共本下水、都市ガス、電気、側溝、農地転用届出要、公園すぐ裏,荒牧小学校700m、ローソン180m、JAファーマーズスーパー500m、敷島公園850m、川原郵便局560m、前橋ゴルフ場400m |